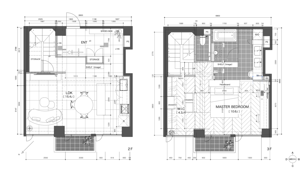
築40年程、100㎡のヴィンテージメゾネットマンションのフルリノベーション。
海外にお住まいのDINKSの日本の拠点に、心地よくホテルライクな間取りをデザイン。
床:1階600角タイル 2階:オークフローリング+タイル
壁:珪藻土クロス
照明:ENDO Syncaシリーズ(調光調色ライティングコントロール)

エントランスを入るとガラス越しにダイニングスペースが見える。限られた空間だからこそ、開放感と先へ進む期待感を演出した。


オークとシーザーストーン天板の造作キッチンをデザイン。水栓やシンクはKOHLER製のものを選定。


2階にはホテルライクなベッドルーム。あえて間仕切りは作らずベッドルーム〜クローゼット〜バスルームを回遊同線に。




オーダーユニットバスはKOHLER製のもの。





